Get instant access to verified listings, investment insights & expert guidance — free.
Our team will reach out to you shortly with the best properties matched to your needs.
Moneymonial connects you with premium real estate investments. Smarter search, verified listings, and expert guidance — all in one place.

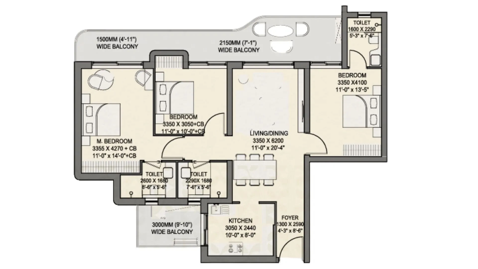
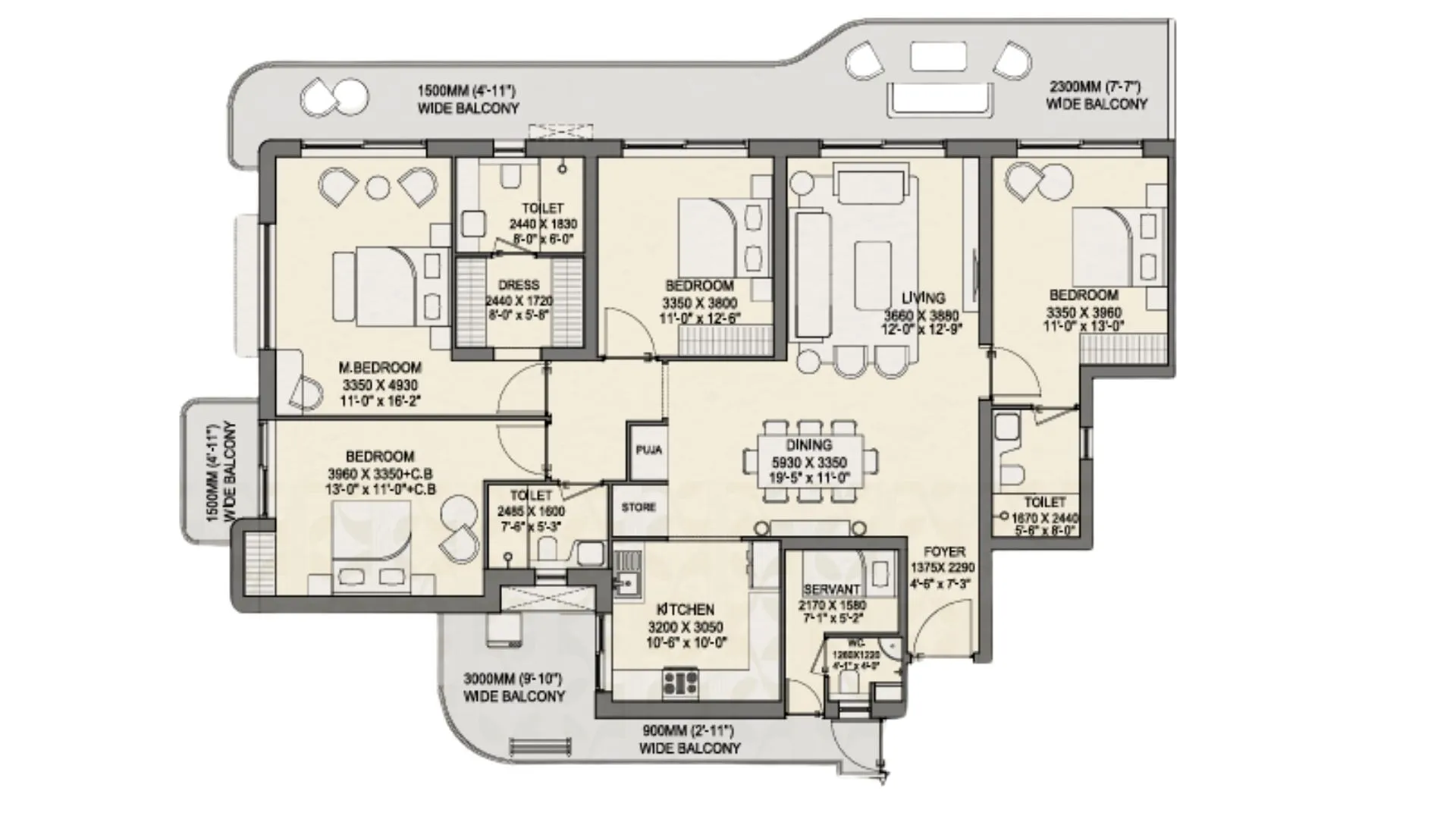
Properties
At Moneymonial, we believe that every happy client tells a story of trust, quality, and results. Our journey is built on delivering excellence and creating experiences that speak for themselves.




Trusted professionals dedicated to finding you the perfect property.

General Manager

General Manager

General Manager

General Manager

General Manager

General Manager

General Manager

General Manager

General Manager

General Manager
Great experience with Moneymonial! Professional team, verified properties, and smooth process from start to finish. Highly recommended for real estate investments.
Had a great experience with Money Monial! The team was professional, honest, and made the whole property buying process smooth and stress-free. Highly recommended for anyone looking to invest in real estate 👍
Great experience investing with Money Monial! Their market knowledge and guidance helped me choose the right property with strong returns. The whole process was smooth, transparent, and professional. Highly recommended for real estate investors!
Great experience purchasing my commercial shop through Money Monial! Their team provided excellent guidance, clear insights, and made the entire process smooth and hassle-free. Highly recommended for anyone looking to invest in commercial property!
Join over 8,400 families who trusted Moneymonial to find their perfect property.
Start Your Search Today